Anlegerwohnung in begehrter Lage in 1180 Wien – direkt am Park.
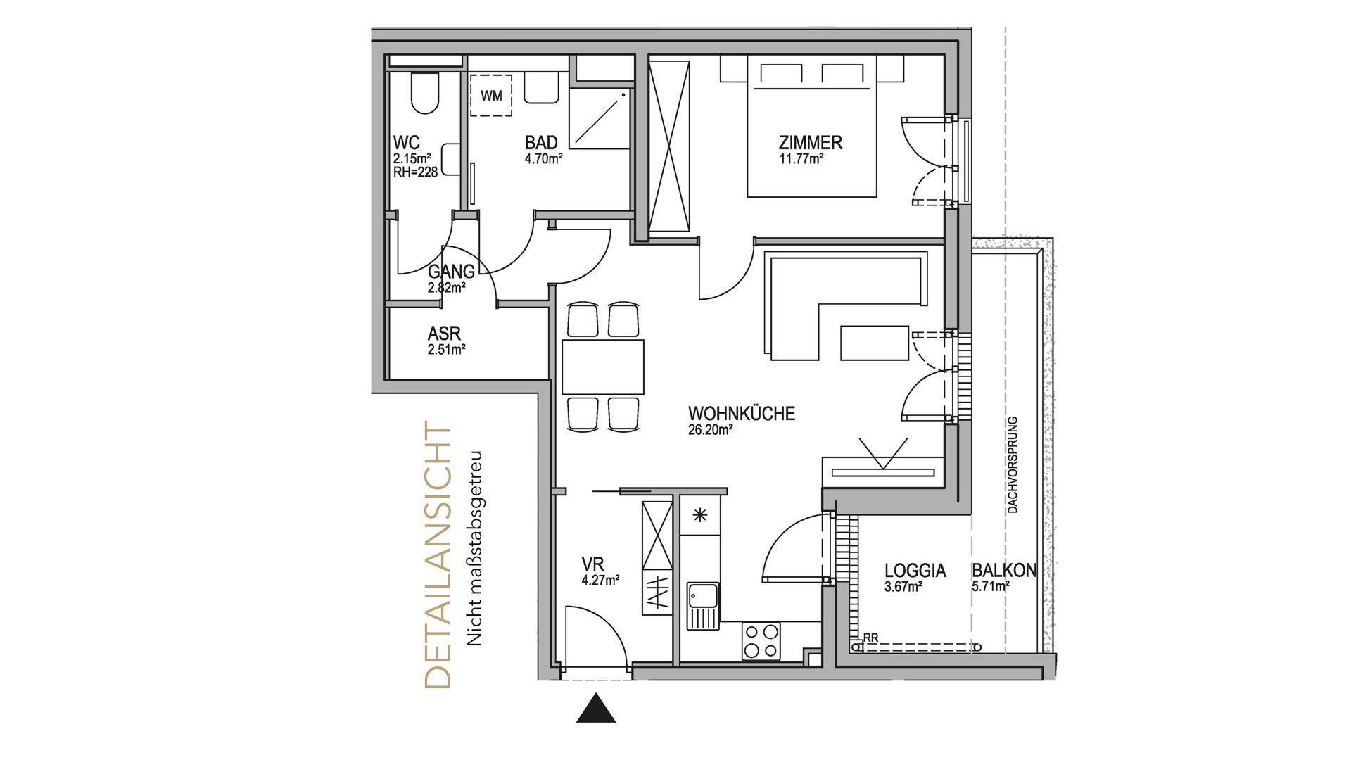
Diese klimatisierte 2-Zimmer Wohnung TOP 1.24 im 4. Obergeschoß bietet eine Verbindung zum Währinger Park. Erreichbar über einen Spazierweg im hauseigenen Innenhof.
Den zentralen Mittelpunkt der Wohnung bildet die helle Wohnküche. Diese ist direkt mit der nach Süden ausgerichteten 9,38 m² großen Freifläche (Loggia & Balkon) verbunden. Das Schlafzimmer ist als Ruhepol der Wohnung und als persönlicher Rückzugsort konzipiert. Das Badezimmer mit bodenebener Dusche und seinen hellen Feinsteinzeug-Fliesen ist ein Ort des Entspannens und Wohlbefindens. Eine separate Toilette sowie ein Abstellraum sorgen für noch mehr Komfort. Ein wohltemperiertes Raumklima wird von der Bauteilaktivierung sichergestellt. Als zusätzlicher Komfort ist die Wohnung auch mit Klimageräten ausgestattet. Die Wohnung verbindet zeitgemäße, hochqualitative Ausstattung mit modernem Design.
Die Anlegerwohnung ist mit einer maßgeschneiderten Einbauküche inkl. Markengeräten ausgestattet.
ACHTUNG VORSORGE-/INVESTORENWOHNUNG!
Bei dieser Wohnung handelt es sich um eine VORSORGE-/INVESTORENWOHNUNG, welche auf mindestens 20 Jahre vermietet werden muss. Der Verkaufspreis versteht sich netto exkl. 20 % USt. und inkl. Küche. Gerne kann diese auch als Eigentumswohnung zur Eigennutzung erworben werden. Kontaktieren Sie uns dazu gerne, wir stehen Ihnen für ein unverbindliches Beratungsgespräch gerne zur Verfügung. Alle Wohnungen des Projekts finden Sie außerdem unter www.theparkside.at
Hinweis: Die Bilder sind als Beispiele angeführt. Die Aufteilung der jeweiligen Wohnung ist dem Grundriss zu entnehmen. Sämtliche Visualisierungen sind Symboldarstellungen und stellen den derzeitigen Planungsstand dar.
// Wohnkultur in einem der begehrtesten Viertel Wiens, in 1180 Währing.
Das gesamte Konzept der PARKSIDE GREEN RESIDENCES ist auf die Ansprüche unserer Kundinnen und Kunden ausgerichtet. Auf Basis unserer Erfahrung planen und errichten wir bereits seit 1993 hochwertige Immobilien mit innovativen Technologien und attraktiven Mehrwerten. Anlässlich unserer 30-jährigen Erfolgsgeschichte entsteht dieses außergewöhnliche Projekt mit durchdachten Grundrissen, einer behaglichen Wohnraumtemperierung, überwiegend bodentiefen Fenstern mit elektrischer Außenbeschattung, optionaler Smart-Home Vorbereitung, Parkettboden, Feinsteinzeug-Fliesen und einbruchhemmender Wohnungseingangstüre (RC3). Die hauseigene Garage mit optionaler E-Lademöglichkeit bietet zusätzlichen Komfort. Dieses Projekt ist für uns weit mehr als ein Bauvorhaben – es ist ein Versprechen an eine Lebensweise, die das Beste aus urbanem Leben und der Schönheit der Natur in einer harmonischen Symbiose vereint. Die Fassadenbegrünung, die Erdwärmepumpen und die PVT-Anlage versinnbildlichen unser ökologisches Engagement und verbinden Park & Stadt.
Mehr Details:
www.theparkside.at
Kontaktieren Sie unser Vertriebsteam gerne direkt.
Die hervorragende Lage ist genauso herausragend wie das Projekt selbst: Gelegen im 18. Bezirk direkt am 4,8 ha großen Währinger Park.
// Adresse: Mollgasse 15 & Anastasius-Grün-Gasse 26, 1180 Wien
// Die Nachbarschaft: Das Cottageviertel und 1190 Wien
// Perfekte Infrastruktur: Fußläufig zur U-Bahn, mit dem Rad in 5 Minuten beim AKH, mit dem Bus in ca. 17 Minuten direkt am Schottentor und eine hauseigene Garage mit optionaler E-Ladestation.
// Kultur & Shopping-Vergnügen: Die Volksoper und der Kutschkermarkt befindet sich in unmittelbarer Umgebung.
// Bildungseinrichtungen & Gesundheit in der Nähe: WIFI, BOKU, Allgemeines Krankenhaus und Privatkliniken
| Distanz zum Flughafen | 22,0 km |
| Distanz zur Autobahn | 2,8 km |
| Distanz zu U/S-Bahn-Haltestelle | 0,5 km |
| Distanz zu Bushaltestelle | 0,2 km |
| Distanz zum Kindergarten | 0,4 km |
| Distanz zur Grundschule | 0,2 km |
| Distanz zur Hauptschule | 0,6 km |
| Distanz zum Gymnasium | 0,6 km |
| Distanz zum Zentrum | 3,6 km |
| Distanz zu Einkaufsmöglichkeiten | 0,3 km |
| Straße | Anastasius-Grün-Gasse |
| Hausnummer | 26 |
| PLZ | 1180 |
| Ort | Wien |
| Etage | 4 |
| Objektart | Wohnung |
| Objekttyp | Etagenwohnung |
| Nutzungsart | Wohnen |
| Vermarktungsart | Kaufen |
| Wohnfläche | 54,46 m² |
| Nutzfläche | 58,13 m² |
| Freifläche | 9,38 m² |
| Kellerfläche | 5,45 m² |
| Anzahl Zimmer | 2 |
| Anzahl Schlafzimmer | 1 |
| Anzahl Badezimmer | 1 |
| Anzahl sep. WC | 1 |
| Balkone | 1 |
| Balkon-/Terrassenfläche | 9,38 m² |
| Loggien | 1 |
| Boden | Fliesen, Parkett |
| Befeuerung | Solar, Erdwärme |
| Heizungsart | Zentralheizung |
| Küche | Einbauküche |
| Fahrstuhl | Personenaufzug |
| Fahrradraum | ja |
| Klimatisiert | ja |
| ImmoNr. | Green1_Top_24_A |
| Baujahr | 2027 |
| Zustand | Erstbezug |
| HWB-Klasse | B |
| Kaufpreis | 494.000 € |
Um Ihnen ein optimales Erlebnis zu bieten, verwenden wir Technologien wie Cookies, welche personenbezogene Daten speichern. Diese ermöglichen es Ihnen automatisch Ihre Daten für Anfragen, an uns, auszufüllen sowie personalisierte Angebote auf unserer Webseite, den sozialen Medien und mehr zu erhalten. Dies können wir dank der Zusammenarbeit, Analysen und Statistiken mit unseren Partnern und Drittanbietern. Mehr zu unseren Partnern und der Verwendung Ihrer Daten finden Sie in den Cookie-Richtlinien. Sie können Ihre Auswahl jederzeit ändern. Wenn Sie unsere Homepage vollumfänglich nutzen möchten und die Nutzung und Speicherung von Cookies für Sie in Ordnung ist, klicken Sie auf „akzeptieren“.
Sie sind Eigentümer:in oder Mieter:in? Dann tragen Sie unten bitte Ihre Adresse ein und um welches Anliegen es sich handelt. Die betreuende Person wird sich umgehend bei Ihnen melden.