Wohnen direkt am Park.
Die 2-Zimmer Wohnung TOP 1.04 im 1. Obergeschoß bietet Ihnen eine Verbindung zum Währinger Park. Sie erreichen diesen über einen Spazierweg im hauseigenen Innenhof.
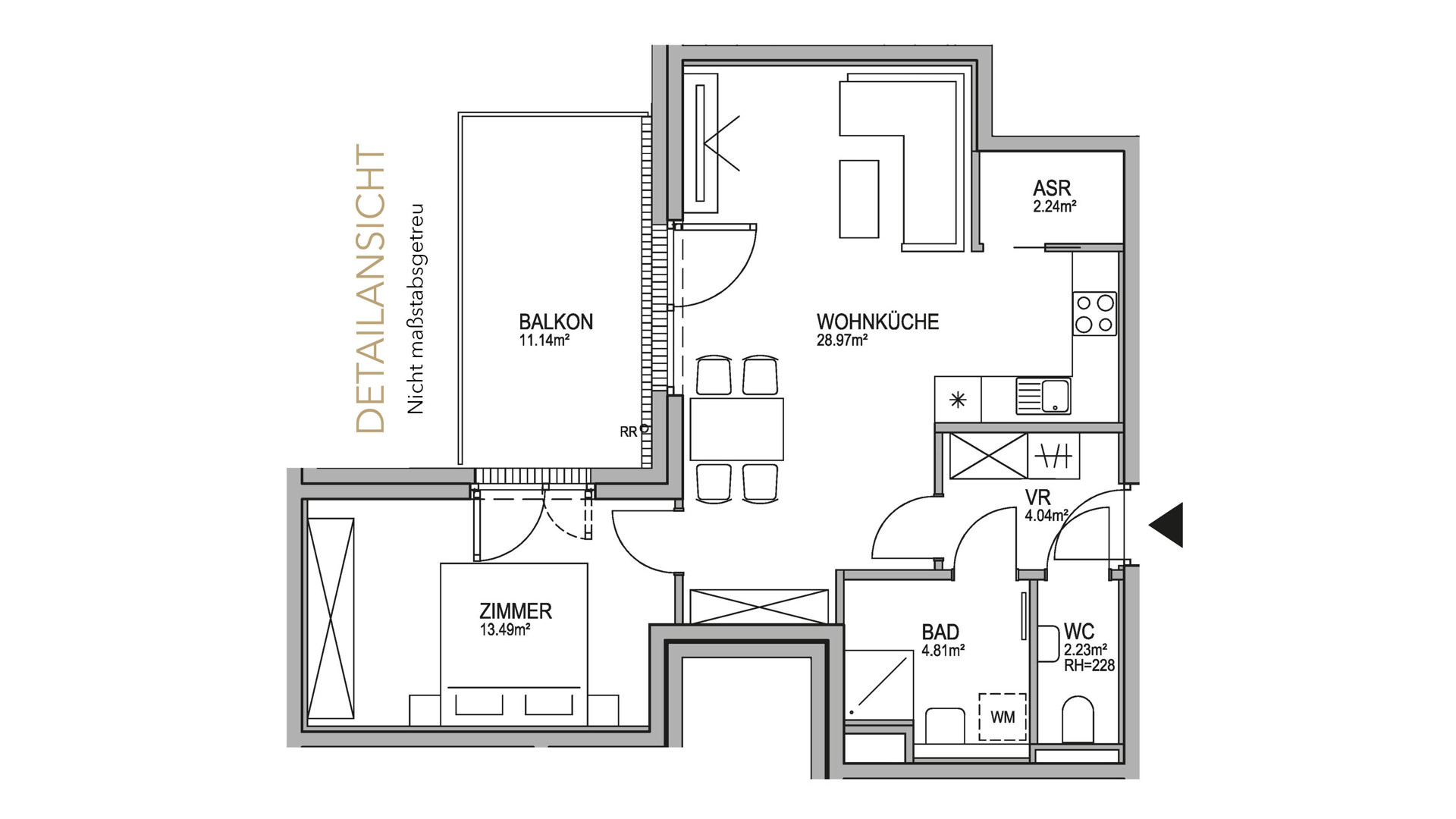
Den zentralen Mittelpunkt der Wohnung bildet die helle Wohnküche. Diese ist direkt mit dem nach Nord-Ost ausgerichteten 11,14 m² großen Balkon verbunden, welcher in den ruhigen Innenhof des Wohnbauprojekts blickt. Das Schlafzimmer ist als Ruhepol der Wohnung und als Ihr persönlicher Rückzugsort konzipiert. Das Badezimmer mit bodenebener Dusche und seinen hellen Feinsteinzeug-Fliesen ist ein Ort des Entspannens und Wohlbefindens. Eine separate Toilette sowie ein Abstellraum sorgen für noch mehr Komfort. Die Wohnung verbindet zeitgemäße, hochqualitative Ausstattung mit modernem Design. Ein wohltemperiertes Raumklima wird von der Bauteilaktivierung sichergestellt.
Option für Anleger: Diese Wohnung kann als Vorsorgewohnung erworben werden. Nähere Informationen dazu finden Sie auf der Projektwebsite www.theparkside.at
Hinweis: Die Bilder sind als Beispiele angeführt. Die Aufteilung der jeweiligen Wohnung ist dem Grundriss zu entnehmen. Sämtliche Visualisierungen sind Symboldarstellungen und stellen den derzeitigen Planungsstand dar.
// Wohnkultur in einem der begehrtesten Viertel Wiens, in 1180 Währing.
Das gesamte Konzept der PARKSIDE GREEN RESIDENCES ist auf die Ansprüche unserer Kundinnen und Kunden ausgerichtet. Auf Basis unserer Erfahrung planen und errichten wir bereits seit 1993 hochwertige Immobilien mit innovativen Technologien und attraktiven Mehrwerten. Anlässlich unserer 30-jährigen Erfolgsgeschichte entsteht dieses außergewöhnliche Projekt mit durchdachten Grundrissen, einer behaglichen Wohnraumtemperierung, überwiegend bodentiefen Fenstern mit elektrischer Außenbeschattung, optionaler Smart-Home Vorbereitung, Parkettboden, Feinsteinzeug-Fliesen und einbruchhemmender Wohnungseingangstüre (RC3). Die hauseigene Garage mit optionaler E-Lademöglichkeit bietet zusätzlichen Komfort. Dieses Projekt ist für uns weit mehr als ein Bauvorhaben – es ist ein Versprechen an eine Lebensweise, die das Beste aus urbanem Leben und der Schönheit der Natur in einer harmonischen Symbiose vereint. Die Fassadenbegrünung, die Erdwärmepumpen und die PVT-Anlage versinnbildlichen unser ökologisches Engagement und verbinden Park & Stadt.
Mehr Details:
www.theparkside.at
Kontaktieren Sie unser Vertriebsteam gerne direkt.
Die hervorragende Lage ist genauso herausragend wie das Projekt selbst: Gelegen im 18. Bezirk wohnen Sie direkt am 4,8 ha großen Währinger Park.
// Adresse: Mollgasse 15 & Anastasius-Grün-Gasse 26, 1180 Wien
// Die Nachbarschaft: Das Cottageviertel
// Perfekte Infrastruktur: Fußläufig zur U-Bahn, mit dem Rad in 5 Minuten beim AKH, mit dem Bus in ca. 17 Minuten direkt am Schottentor und eine hauseigene Garage mit optionaler E-Ladestation.
// Kultur & Shopping-Vergnügen: Die Volksoper und der Kutschkermarkt befinden sich in unmittelbarer Umgebung.
// Bildungseinrichtungen & Gesundheit in der Nähe: WIFI, BOKU, Allgemeines Krankenhaus und Privatkliniken
| Distanz zum Flughafen | 22,0 km |
| Distanz zur Autobahn | 2,8 km |
| Distanz zu U/S-Bahn-Haltestelle | 0,5 km |
| Distanz zu Bushaltestelle | 0,2 km |
| Distanz zum Kindergarten | 0,4 km |
| Distanz zur Grundschule | 0,2 km |
| Distanz zur Hauptschule | 0,5 km |
| Distanz zum Gymnasium | 0,6 km |
| Distanz zum Zentrum | 3,6 km |
| Distanz zu Einkaufsmöglichkeiten | 0,3 km |
| Straße | Anastasius-Grün-Gasse |
| Hausnummer | 26 |
| PLZ | 1180 |
| Ort | Wien |
| Etage | 1 |
| Objektart | Wohnung |
| Objekttyp | Etagenwohnung |
| Nutzungsart | Wohnen |
| Vermarktungsart | Kaufen |
| Wohnfläche | 55,78 m² |
| Nutzfläche | 55,78 m² |
| Freifläche | 11,14 m² |
| Kellerfläche | 3,21 m² |
| Anzahl Zimmer | 2 |
| Anzahl Schlafzimmer | 1 |
| Anzahl Badezimmer | 1 |
| Anzahl sep. WC | 1 |
| Balkone | 1 |
| Balkon-/Terrassenfläche | 11,14 m² |
| Boden | Fliesen, Parkett |
| Befeuerung | Solar, Erdwärme |
| Heizungsart | Zentralheizung |
| Fahrstuhl | Personenaufzug |
| Fahrradraum | ja |
| ImmoNr. | Green1_Top_04_E |
| Baujahr | 2027 |
| Zustand | Erstbezug |
| HWB-Klasse | B |
| Kaufpreis | 449.000 € |
Um Ihnen ein optimales Erlebnis zu bieten, verwenden wir Technologien wie Cookies, welche personenbezogene Daten speichern. Diese ermöglichen es Ihnen automatisch Ihre Daten für Anfragen, an uns, auszufüllen sowie personalisierte Angebote auf unserer Webseite, den sozialen Medien und mehr zu erhalten. Dies können wir dank der Zusammenarbeit, Analysen und Statistiken mit unseren Partnern und Drittanbietern. Mehr zu unseren Partnern und der Verwendung Ihrer Daten finden Sie in den Cookie-Richtlinien. Sie können Ihre Auswahl jederzeit ändern. Wenn Sie unsere Homepage vollumfänglich nutzen möchten und die Nutzung und Speicherung von Cookies für Sie in Ordnung ist, klicken Sie auf „akzeptieren“.
Sie sind Eigentümer:in oder Mieter:in? Dann tragen Sie unten bitte Ihre Adresse ein und um welches Anliegen es sich handelt. Die betreuende Person wird sich umgehend bei Ihnen melden.