WICHTIGER HINWEIS:
Alle Wohnungen und den 3D Wohnungsfinder für Investoren als auch Endnutzer finden Sie unter www.live21.at
LIVE21 – Premium-Vorsorge-Wohnungen in Floridsdorf
PROVISIONSFREI | BAUBEWILLIGT | FERTIGSTELLUNG: 2027
An der Brünner Straße 114 im 21.ten Wiener Gemeindebezirk werden 27 Premium-Vorsorge-Wohnungen von der renommierten und mehrfach ausgezeichneten HÜBL & PARTNER Gruppe errichtet. Seit der Gründung im Jahr 1993 hat sich die Gruppe zu einer der führenden österreichischen Immobilien- und Anlagegesellschaften entwickelt.
INNEN INFORMATION ZUM PROJEKT:
// 27 Wohneinheiten im barrierefreien Niedrigenergiehaus auf sechs Geschoßen mit 2–3-Zimmer-Wohnungen von 52 -80 m² mit eigener Freifläche
// KlimaAktiv Bronze zertifizierte nachhaltige Bauweise mit langlebiger, moderner und hochwertiger Ausstattung – unter anderem mit einer oberflächennahen Bauteilaktivierung
// Hauseigene Parkgarage, optional mit E-Ladestation
// Hohes Mietpotenzial - durch das stetige Wachstum innerhalb des Bezirks sowie durch den stetigen Zuzug aus den umliegenden Bezirken
// Außergewöhnlich gute, umliegende Versorgung
// Exzellente öffentliche Verkehrsanbindung - mit welcher das Wiener Stadtzentrum innerhalb kurzer Zeit erreichbar ist
// Mietergruppen: innen des 21.Bezirks und Umkreis, Pendler, Expats, Angestellte aus den umliegenden großen Unternehmen, wie der Klinik Floridsdorf (nur wenige Gehminuten entfernt) und Siemens
// Potenzielle Mieter:innen: Singles, Paare, Familien mit einem Kind und Senioren
// Optional: Mietenpool
DIE WOHNUNG IM DETAIL:
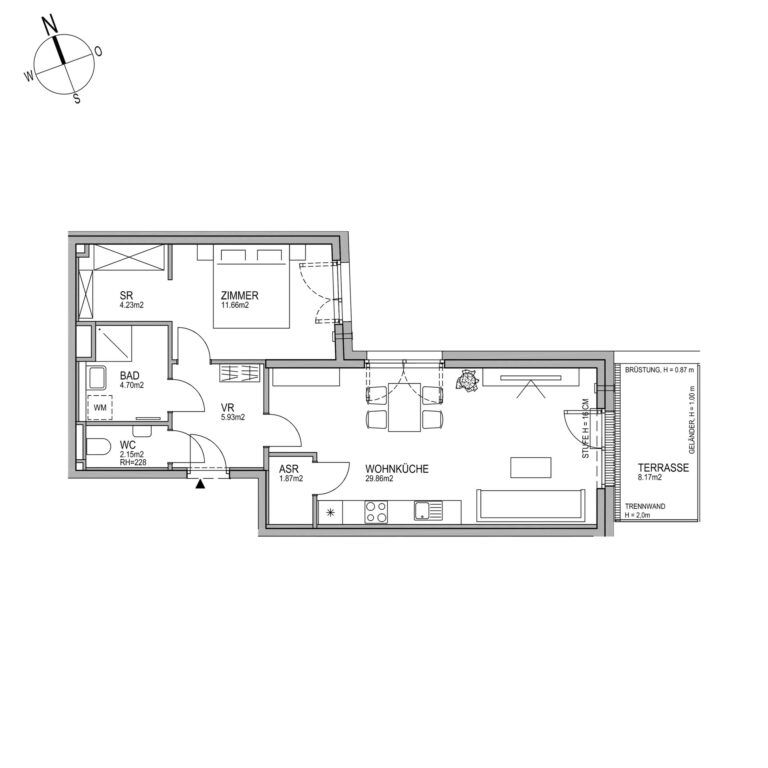
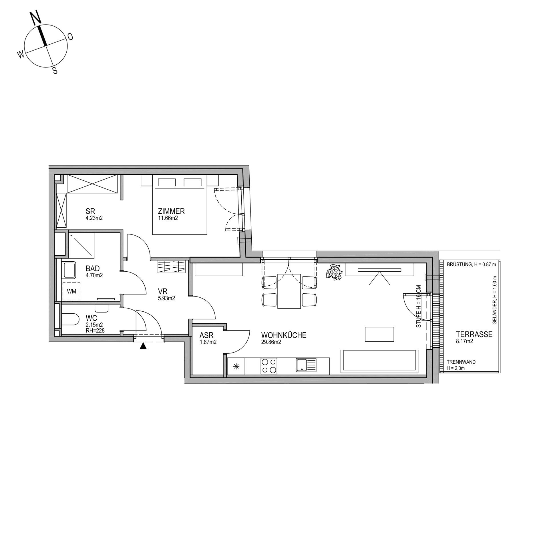
Im 1. Obergeschoß liegt diese straßenabgewandte, provisionsfreie 2-Zimmer Wohnung TOP 05 mit einer Wohnnutzfläche von 60,39 m². Den zentralen Mittelpunkt der Wohnung bildet die helle Wohnküche, diese ist direkt mit der großzügigen nordöstlich ausgerichteten Terrasse verbunden. Ein besonderes Highlight ist das geräumige Schlafzimmer mit eigenem Schrankraum. Das moderne Bad mit Dusche und Waschmaschinenanschluss sowie ein getrenntes WC mit Handwaschbecken und ein Abstellraum vervollständigen die Wohnung. Für ein ganzjährig angenehm temperiertes Raumklima sorgen die Bauteilaktivierung und die funkgesteuerte, elektrische Außenbeschattung. Ergänzt wird der Wohnkomfort durch hochwertige 3-fach isolierte Holz-Alu-Fenster, die Ruhe im Innenraum schaffen.
Ein Garagenstellplatz kann, je nach Verfügbarkeit, optional erworben werden.
Jeder Wohnung ist ein eigener Einlagerungsraum zugewiesen.
GEHOBENE AUSSTATTUNG FÜR EINE IDEALE ANLEGER-WOHNUNG:
Das Projekt LIVE21 bietet eine hohe Bau-Qualität, zertifiziert nach Klimaaktiv Bronze, sowie eine moderne Ausstattung in gehobener Ausführung mit langlebigen Materialien von renommierten regionalen und internationalen Marken. Die Anforderungen an Anlegerwohnungen wurden bei der Auswahl der Materialien gezielt berücksichtigt, um den langfristigen Werterhalt Ihrer Investition zu sichern. Gleichzeitig werden die Interessen und Bedürfnisse der potenziellen innen eingebunden.
In allen Wohnräumen gelangt hochwertigster Eichenparkett und in den Nassräumen (Vorraum, Bad, WC) edle Feinsteinzeug-Fliesen zur Verwendung. Die Sanitärausstattung ist hochwertig und zeitlos gestaltet. Die klimafreundliche, vollflächige Bauteilaktivierung sorgt ganzjährig für ein angenehmes Raumklima – sanft kühlend im Sommer, gleichmäßig wärmend im Winter, ohne störenden Luftzug. Gesteuert wird diese über ein digitales Raumthermostat, optional über eine App. Die dreifach isolierten Holz-Alu-Fenster mit elektrischer, funkgesteuerter Außenbeschattung bieten Schutz vor Hitze, Kälte und Lärm – ein klarer Vorteil in dieser urbanen Lage.
Für eine schnelle Vermietung wird jede Vorsorgewohnung mit einer modernen Noblia Küche mit AEG Geräten übergeben. Die Farbvideogegensprechanlage, einbruchhemmende Wohnungseingangstüren (RC3), Raumelder in jedem Wohnraum sowie ein TV- & Internet-Anschluss im Wohnzimmer bieten weiteren Komfort für die zukünftigen innen.
Die Barrierefreiheit und hervorragende öffentliche Verbindung zur Klinik Floridsdorf (8 min mit den öffentlichen Verkehrsmitteln oder 12 min zu Fuß) ist auch für innen interessant.
Das nachhaltige Energiekonzept mit Photovoltaik und Luftwärmepumpe entspricht den neuesten Bau- & Umweltstandards. Die hauseigene Tiefgarage mit zwölf Stellplätzen, davon fünf bereits mit E-Ladestationen vor gerüstet, sowie ein Kleinkinderspielplatz, Fahrrad- und Kinderwagenabstellraum ergänzen das Projekt.
Hinweise:
- Eine vollständige Preisübersicht der verfügbaren Endnutzer- und Vorsorgewohnungen sowie den 3D Wohnungsfinder finden Sie unter www.live21.at
- Die Bilder sind als Beispiele angeführt. Die Aufteilung der jeweiligen Wohnung ist dem Grundriss zu entnehmen. Sämtliche Visualisierungen sind Symboldarstellungen und müssen nicht der Wohnung entsprechen.
Der Kauf ist provisionsfrei für die Käuferin oder den Käufer.
Anlegerwohnung in höchster Bau-Qualität und langlebigen Materialien für einen langfristigen Werterhalt Ihrer Investition. Details dazu in der Objekt-Beschreibung oder unter www.live21.at
Im dynamischen, wachstumsstarken Floridsdorf entsteht an der Brünner Straße 114 das Premium-Neubauprojekt LIVE21 von HÜBL & PARTNER. Der 21.ten Bezirk Wiens gilt als gefragte Wohngegend mit starkem Zuzug und mit hohem Mietanteil.
Durch die Brünner Straße ist die umliegende Versorgung außergewöhnlich gut und es besteht eine exzellente öffentliche Verkehrsanbindung - mit welcher das Wiener Stadtzentrum innerhalb kurzer Zeit erreichbar ist.
DAS PROJEKT:
// Adresse: Brünner Straße 114 in 1210 Wien
// Exzellente öffentliche Anbindung: Straßenbahnlinie 31 schräg gegenüberliegend mit Verbindung zur S-Bahn-Station Brünner Straße, U6 Floridsdorf + S-Bahnen, U2 Schottenring
// Sehr gute Verkehrsanbindung mit dem Auto: Knotenpunkt Nordbrücke
// Nahversorger & Einkaufsmöglichkeiten: Fußläufig in 2-15min: Penny, Billa, Hofer, Lidl, Eurospar, Trillerpark, SCN
// Bildungseinrichtungen & Gesundheit in der Nähe: Klinik Floridsdorf, verschiedenste Ärzte, Apotheken, Banken, Kindergärten, Schulen, Spielplätze und mehr
// Freizeit und Erholung: Beliebter Marchfeldkanal, charmantes Heurigengebiet Stammersdorf, Erholungsgebiet Donauinsel & Alte Donau
Weitere Informationen finden Sie auf der Homepage www.live21.at oder kontaktieren Sie uns persönlich.
| Distanz zum Flughafen | 20,7 km |
| Distanz zur Autobahn | 1,0 km |
| Distanz zu U/S-Bahn-Haltestelle | 2,2 km |
| Distanz zu Bushaltestelle | 0,2 km |
| Distanz zum Kindergarten | 0,3 km |
| Distanz zur Grundschule | 0,2 km |
| Distanz zur Hauptschule | 0,7 km |
| Distanz zum Gymnasium | 0,7 km |
| Distanz zum Zentrum | 7,9 km |
| Distanz zu Einkaufsmöglichkeiten | 0,5 km |
| Straße | Brünner Straße |
| Hausnummer | 114 |
| PLZ | 1210 |
| Ort | Wien |
| Etage | 1 |
| Objektart | Wohnung |
| Objekttyp | Etagenwohnung |
| Nutzungsart | Wohnen |
| Vermarktungsart | Kaufen |
| Wohnfläche | 60,4 m² |
| Freifläche | 8,17 m² |
| Kellerfläche | 5,84 m² |
| Anzahl Zimmer | 2 |
| Anzahl Schlafzimmer | 1 |
| Anzahl Badezimmer | 1 |
| Anzahl sep. WC | 1 |
| Terrassen | 1 |
| Balkon-/Terrassenfläche | 8,17 m² |
| Boden | Fliesen, Parkett |
| Befeuerung | Luft-Wärmepumpe, Warmwasser-Elektroheizung |
| Heizungsart | Zentralheizung |
| Fahrstuhl | Personenaufzug |
| Fahrradraum | ja |
| ImmoNr. | LIVE21_A_Top_05 |
| Baujahr | 2027 |
| Zustand | Erstbezug |
| HWB-Klasse | A |
| Kaufpreis | 355.616 € |
Um Ihnen ein optimales Erlebnis zu bieten, verwenden wir Technologien wie Cookies, welche personenbezogene Daten speichern. Diese ermöglichen es Ihnen automatisch Ihre Daten für Anfragen, an uns, auszufüllen sowie personalisierte Angebote auf unserer Webseite, den sozialen Medien und mehr zu erhalten. Dies können wir dank der Zusammenarbeit, Analysen und Statistiken mit unseren Partnern und Drittanbietern. Mehr zu unseren Partnern und der Verwendung Ihrer Daten finden Sie in den Cookie-Richtlinien. Sie können Ihre Auswahl jederzeit ändern. Wenn Sie unsere Homepage vollumfänglich nutzen möchten und die Nutzung und Speicherung von Cookies für Sie in Ordnung ist, klicken Sie auf „akzeptieren“.
Sie sind Eigentümer:in oder Mieter:in? Dann tragen Sie unten bitte Ihre Adresse ein und um welches Anliegen es sich handelt. Die betreuende Person wird sich umgehend bei Ihnen melden.