WICHTIGER HINWEIS:
Alle Wohnungen und den 3D Wohnungsfinder finden Sie unter www.live21.at
LIVE21 – Freifinanzierte Premium-Wohnungen in Floridsdorf
PROVISIONSFREI | FERTIGSTELLUNG: 2027
Im familienfreundlichen Floridsdorf – nahe dem Shopping Center Nord und der modernen Klinik Floridsdorf – errichtet HÜBL & PARTNER 27 freifinanzierte, provisionsfreie Eigentumswohnungen auf Eigengrund. Die 2–3-Zimmer-Wohnungen haben eine Fläche von 52 bis 80 m² und lassen sich optional auf Wunsch zusammenlegen. Somit werden Wohneinheiten mit zum Beispiel fünf Zimmern möglich. Die gehobene Ausstattung der Wohnungen erfüllt höchste Ansprüche.
Die Lage an der Brünner Straße 114 vereint die Vorzüge des Stadtlebens mit dem Genuss zahlreicher umliegender Erholungsgebiete, wie dem Marchfeldkanal, der Donauinsel und der alten Donau. Die umliegende Versorgung ist außergewöhnlich gut und es besteht eine exzellente öffentliche Verkehrsanbindung - mit welcher das Wiener Stadtzentrum innerhalb kurzer Zeit erreichbar ist.
DIE WOHNUNG IM DETAIL:
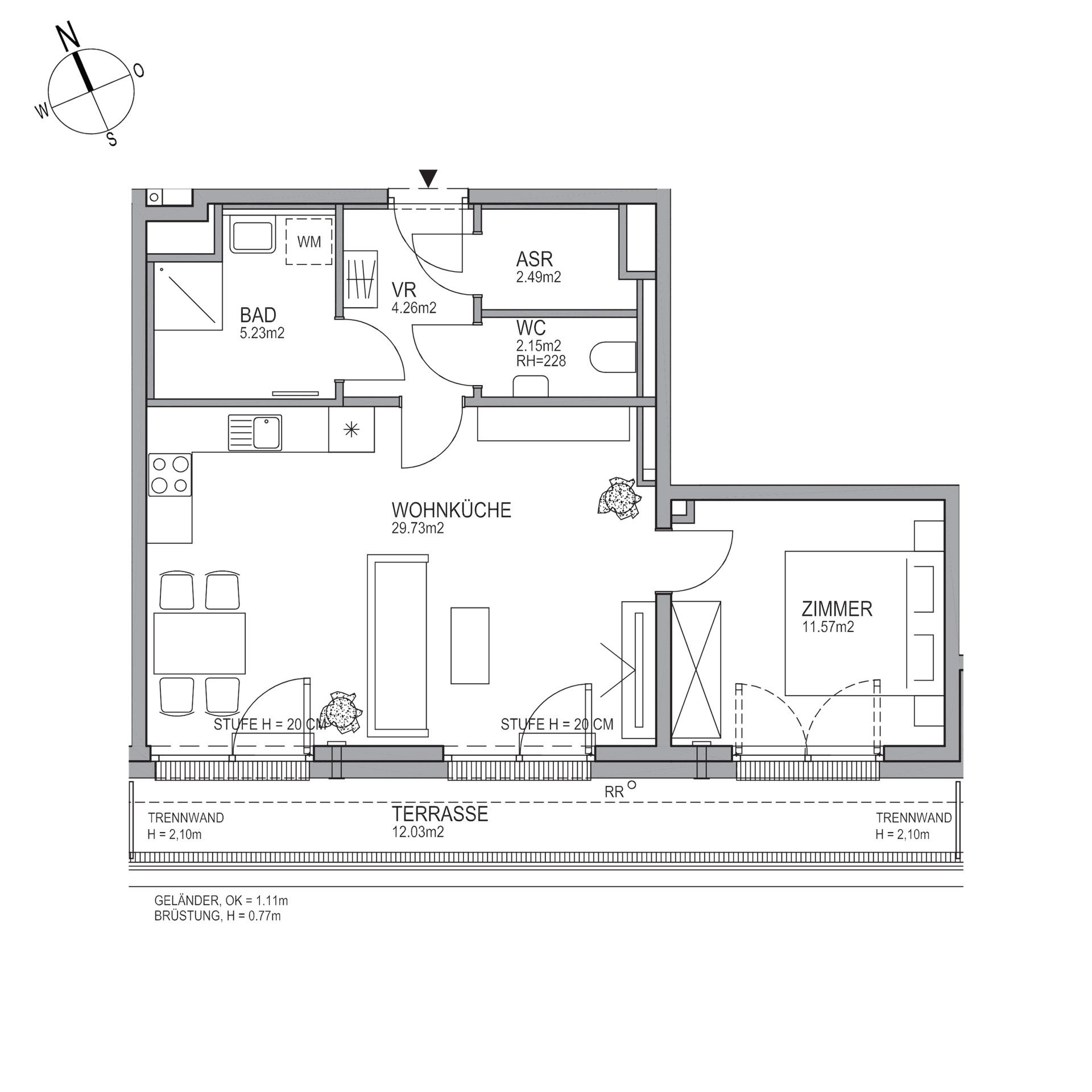
Im 5. Obergeschoß liegt diese wunderschöne 2-Zimmer Wohnung TOP 23 mit einer Wohnnutzfläche von 55,48 m². Den zentralen Mittelpunkt der Wohnung bildet die helle Wohnküche, diese ist direkt mit der großzügigen südwestlich ausgerichteten Terrasse verbunden. Das Schlafzimmer ist zentral begehbar. Das moderne Bad mit Dusche und Waschmaschinenanschluss sowie ein getrenntes WC mit Handwaschbecken und ein Abstellraum vervollständigen die Wohnung. Für ein ganzjährig angenehm temperiertes Raumklima sorgen die Bauteilaktivierung und die funkgesteuerte, elektrische Außenbeschattung. Ergänzt wird der Wohnkomfort durch hochwertige 3-fach isolierte Holz-Alu-Fenster, die Ruhe im Innenraum schaffen.
Ein Garagenstellplatz kann, je nach Verfügbarkeit, optional erworben werden.
Jeder Wohnung ist ein eigener Einlagerungsraum zugewiesen.
GEHOBENE AUSSTATTUNG:
Ihr Zuhause wird zum Wohlfühlort mit gehobener Ausstattung für höchste Ansprüche!
Edles Eichenparkett, ausgewählte Materialien und ein Raumklima, das sich das ganze Jahr über angenehm anfühlt. Sanft kühlend im Sommer, gleichmäßig wärmend im Winter, ganz ohne spürbaren Luftzug. Die Bauteilaktivierung temperiert über die gesamte Deckenfläche. Für spürbare Lebensqualität. Die dreifach isolierten Fenster mit elektrischer funkgesteuerter Außenbeschattung bieten Ruhe und Schutz – genau dann, wenn Sie es brauchen. Die Sanitäreinrichtung ist hochwertig gewählt und zurückhaltend elegant. Unser nachhaltiges Neubauprojekt, zertifiziert nach klimaaktiv Bronze, mit einem Energiekonzept bestehend aus Photovoltaik und Luftwärmepumpe unterstreicht unsere Verantwortung der Umwelt gegenüber. Ein Kleinkinderspielplatz und die hauseigene Tiefgarage mit 12 Stellplätzen, davon fünf bereits mit E-Ladestationen vor gerüstet, ergänzen das Projekt.
Hinweise:
- Diese Wohnung kann auch als Vorsorgeobjekt erworben werden. Eine vollständige Preisübersicht der verfügbaren Endnutzer- und Vorsorgewohnungen sowie den 3D Wohnungsfinder finden Sie unter www.live21.at
- Die Bilder sind als Beispiele angeführt. Die Aufteilung der jeweiligen Wohnung ist dem Grundriss zu entnehmen. Sämtliche Visualisierungen sind Symboldarstellungen und müssen nicht der Wohnung entsprechen.
Ihr Zuhause wird zum Wohlfühlort mit gehobener Ausstattung für höchste Ansprüche! Alle Details finden Sie in der Objektbeschreibung oder auf www.live21.at
LIVE21 – gut gelegen. Gut angebunden. Gut versorgt.
Mitten im Stadtviertel Floridsdorf, dem 21.ten Bezirk Wiens, entsteht an der Brünner Straße 114 das Premium-Neubauprojekt LIVE21 von HÜBL & PARTNER.
WAS DIESE ADRESSE BESONDERS MACHT:
An diesem Ort verbinden sich die Vorzüge des urbanen Stadtlebens und der vielseitigen Erholungsgebiete in der Nähe miteinander. Durch die Brünner Straße ist die umliegende Versorgung außergewöhnlich gut und es besteht eine exzellente öffentliche Verkehrsanbindung - mit welcher das Wiener Stadtzentrum innerhalb kurzer Zeit erreichbar ist. In naher und unmittelbarer Umgebung befinden sich die Klinik Floridsdorf, die idyllische Amtsstraße mit ihren Heurigen und der beliebte Marchfeldkanal – welcher mit seinen breiten Wegen, am Gerasdorfer Badeteich vorbei bis zum barocken Schloß Hof führt. Das Erholungsgebiet Donauinsel & alte Donau mit unzähligen Freizeitaktivitäten sowie unterschiedlichster Gastronomie ist in rund 15 min erreichbar. Eine Lage für Menschen mit Anspruch an die Stadt und ihre Lebensqualität.
GEHREICHWEITE - 15MIN UMKREIS:
Wenige Schritte entfernt befindet sich die Straßenbahnlinie 31. Diese fährt über den Verkehrsknoten Floridsdorf (S-Bahn und U6) weiter bis ins Stadtzentrum zur U2-Station Schottenring. In unmittelbarer Umgebung liegen zahlreiche Nahversorger wie Billa, Lidl, Hofer, Eurospar und Penny. Die idyllische Amtsstraße mit traditionellen Heurigen und Restaurants ist in rund fünf Minuten zu Fuß erreichbar. Das Einkaufszentrum Trillerpark mit vielfältigem Einzelhandel liegt etwa acht Gehminuten entfernt. In rund 15 Minuten erreicht man die moderne Klinik Floridsdorf, die S-Bahn-Station Brünner Straße sowie das Shopping Center Nord. Im nahen Umfeld befinden sich außerdem Schulen, Kindergärten, Spielplätze, Hausärzte, Apotheken, Banken und weitere Einrichtungen für den täglichen Bedarf.
| Distanz zum Flughafen | 20,7 km |
| Distanz zur Autobahn | 1,0 km |
| Distanz zu U/S-Bahn-Haltestelle | 2,2 km |
| Distanz zu Bushaltestelle | 0,2 km |
| Distanz zum Kindergarten | 0,3 km |
| Distanz zur Grundschule | 0,2 km |
| Distanz zur Hauptschule | 0,7 km |
| Distanz zum Gymnasium | 0,7 km |
| Distanz zum Zentrum | 7,9 km |
| Distanz zu Einkaufsmöglichkeiten | 0,5 km |
| Straße | Brünner Straße |
| Hausnummer | 114 |
| PLZ | 1210 |
| Ort | Wien |
| Etage | 5 |
| Objektart | Wohnung |
| Objekttyp | Etagenwohnung |
| Nutzungsart | Wohnen |
| Vermarktungsart | Kaufen |
| Wohnfläche | 55,43 m² |
| Freifläche | 12,03 m² |
| Kellerfläche | 6,25 m² |
| Anzahl Zimmer | 2 |
| Anzahl Schlafzimmer | 1 |
| Anzahl Badezimmer | 1 |
| Anzahl sep. WC | 1 |
| Terrassen | 1 |
| Balkon-/Terrassenfläche | 12,03 m² |
| Boden | Fliesen, Parkett |
| Befeuerung | Luft-Wärmepumpe, Warmwasser-Elektroheizung |
| Heizungsart | Zentralheizung |
| Fahrstuhl | Personenaufzug |
| Fahrradraum | ja |
| ImmoNr. | LIVE21_E_Top_23 |
| Baujahr | 2027 |
| Zustand | Erstbezug |
| HWB-Klasse | A |
| Kaufpreis | 399.000 € |
Um Ihnen ein optimales Erlebnis zu bieten, verwenden wir Technologien wie Cookies, welche personenbezogene Daten speichern. Diese ermöglichen es Ihnen automatisch Ihre Daten für Anfragen, an uns, auszufüllen sowie personalisierte Angebote auf unserer Webseite, den sozialen Medien und mehr zu erhalten. Dies können wir dank der Zusammenarbeit, Analysen und Statistiken mit unseren Partnern und Drittanbietern. Mehr zu unseren Partnern und der Verwendung Ihrer Daten finden Sie in den Cookie-Richtlinien. Sie können Ihre Auswahl jederzeit ändern. Wenn Sie unsere Homepage vollumfänglich nutzen möchten und die Nutzung und Speicherung von Cookies für Sie in Ordnung ist, klicken Sie auf „akzeptieren“.
Sie sind Eigentümer:in oder Mieter:in? Dann tragen Sie unten bitte Ihre Adresse ein und um welches Anliegen es sich handelt. Die betreuende Person wird sich umgehend bei Ihnen melden.